A Historic Information Plaque in Lewes Conservatiomn Area was added to Knowlands facing Stewards Inn Lane by the Friends of Lewes in 2016 citing that the original slaughterhouse was owned by Marsh the Butcher, whose shop was at No 50 High Street LEWES until its closure during World War II. The property name was derived from the working farm sited between Barcombe and Spithurst where the animals were reared to supply the slaughterhouse and Marsh’s butchers’ shop at 50 High Street LEWES. The site is within an area of archaeological potential within the historic core of the medieval and post-medieval town of Lewes and situated close to the scheduled remains of Lewes Castle. St Martin’s Lane itself may possibly preserve the route of one of a number of parallel Saxon lanes that run southwards from the High Street. Cartographic evidence suggests that a building has occupied the plot since at least 1775.
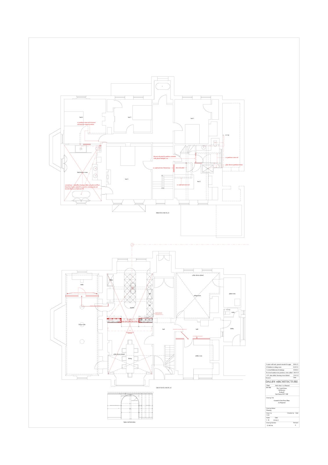
The original slaughterhouse was split into 2 separate residential units with the north facing wall onto Stewards Inn Lane having had the first upper floor windows bricked up presumably when the residential conversion was implemented after WWII. The existing cellular room arrangement creates a series of small spaces not commensurate with modern spatial requirements and takes little advantage of the landscape setting and fine views to the south. The proposal seeks to open up the interior to enable a generous kitchen dining living area with easily accessible service and storage accommodation so clients and their guests can enter the building either using the original garden side door (into a glazed 2 storey stair hall with an open tread stair rising up to the main accommodation) or when children, wet dogs & muddy boots arrive at the house they can enter from Stewards Inn Lane at courtyard level so that coats and boots are neatly placed in storage before entering the principal area of the main house.
Archaeology WSI: Paul Riccoboni / Dr Crrister Carlsson : https://www.independent-archaeology.com/
Energy Assessor: Joe Solti of Thermenergy : http://www.thermenergy.co.uk/
Geotechnical and Foundation Consultant : Dr. W Keith Elson
Consulting Structural Engineer: Philip Young of DHK Ltd: https://www.dhk.co.uk/
3D IMAGES OF EXISTING BUILDING








3D IMAGES OF PROPOSED EXTENSION

















































































































































































































































































































































































































































































































































































































































































































































































































































































































































































