Amberley Castle Barn Conversion Amberley Castle Hotel, Amberley

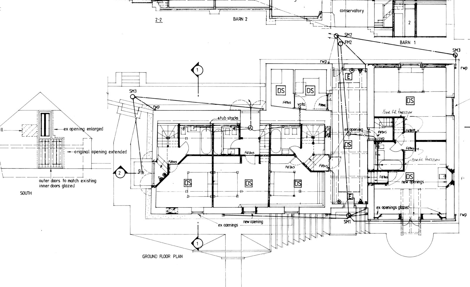
This project involved the conversion and linking of two barns sitting alongside the curtain wall of Amberley Castle into 5 hotel suites each with large jacuzzi baths. The barns were in poor condition prior to conversion. In association with John Lytton & Co. who conduct the land agency for the owners, we fronted extensive negotiations to achieve planning, listed building, & statutory building approvals to insert a glazed link between the two barns and to create high quality suites commensurate with the status of the existing hotel accommodation.

This entry was posted in Hotels & Inns. Bookmark the permalink.

Comments are closed.