NDA designed a decorative contemporary OAK staircase to access a large mezzanine forming part of Grade II Listed 5- bay Barn Conversion near Liphook in assocation with The Green Oak Carpentry Co Ltd.
The clients wanted something really dramatic as a free standing feature in the main hall. The staircase design draws on medieval, historic and contemporary furniture (eg Biedermeier) design using stage techniques such as tromp l’oeil but ultimately intended as a finely crafted and robust piece of bespoke furniture worthy of its prominent setting within this dramatic barn.
- Preliminary sketch of staircase
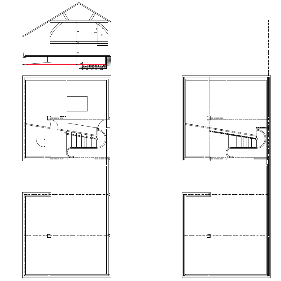
- Section and Plan
- balustrade detail
- view from above
- view of screen wall
- view from ground floor





