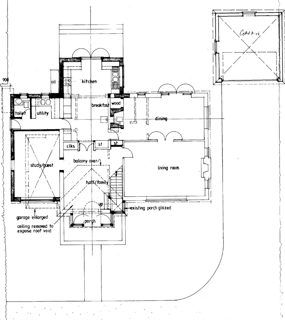
A substandard bungalow for which we negotiated all statutory consents and provided construction & joinery details for conversion to two stories including two storey extensions to two sides. The clients completed the work on a self build basis with our assistance. Dates: 2000-1.
- elevations
- first floor plan
- ground floor plan
- kids loft
- dining room
- main bedroom
- entrance hall from stairs
- entrance hall joinery internal view
- garden elevation
- garden elevation
- front entrance joinery
- street entrance











