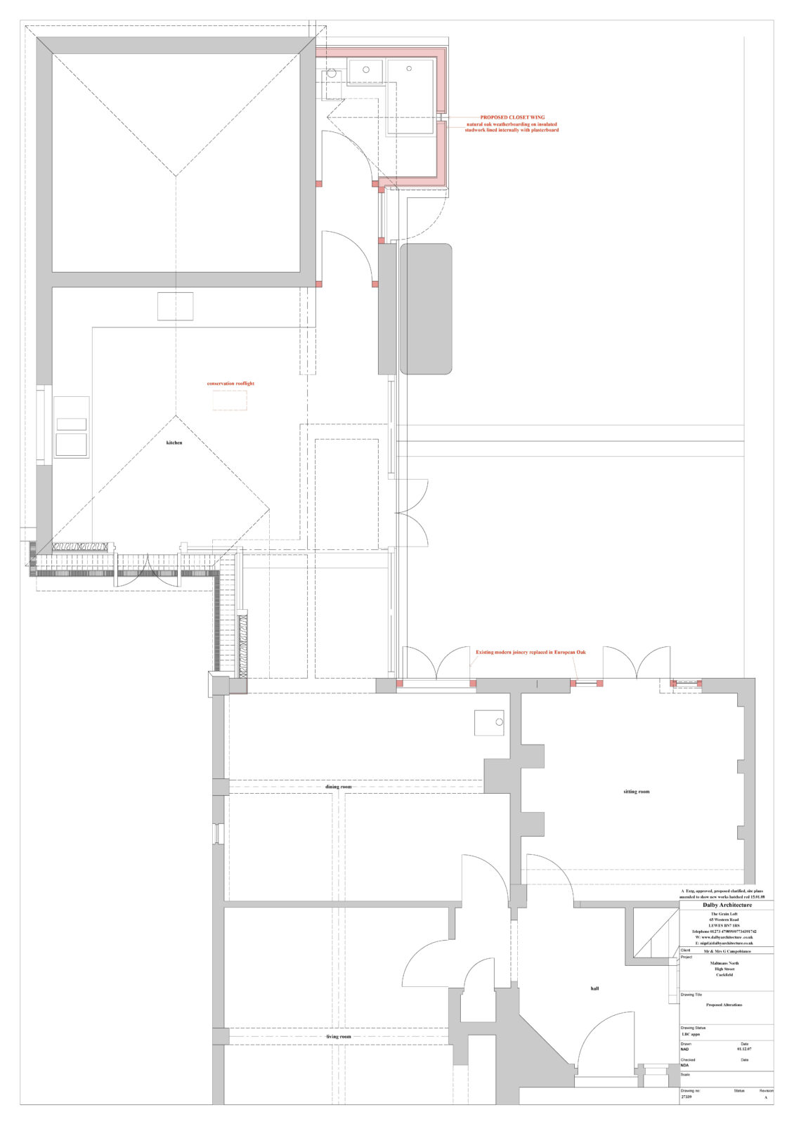
A Grade II listed late 17th Century house set in the High Street of Cuckfield, we obtained detailed Listed and Planning Consent for a new kitchen resited within an existing service wing which was refurbished and we also obtained consent for a new closet wing extension.
- flank wall
- garden elevation service range on rhs
- existing plan
- existing elevations
- closet wing plan
- elevations
- service wing alterations
- garden elevation







