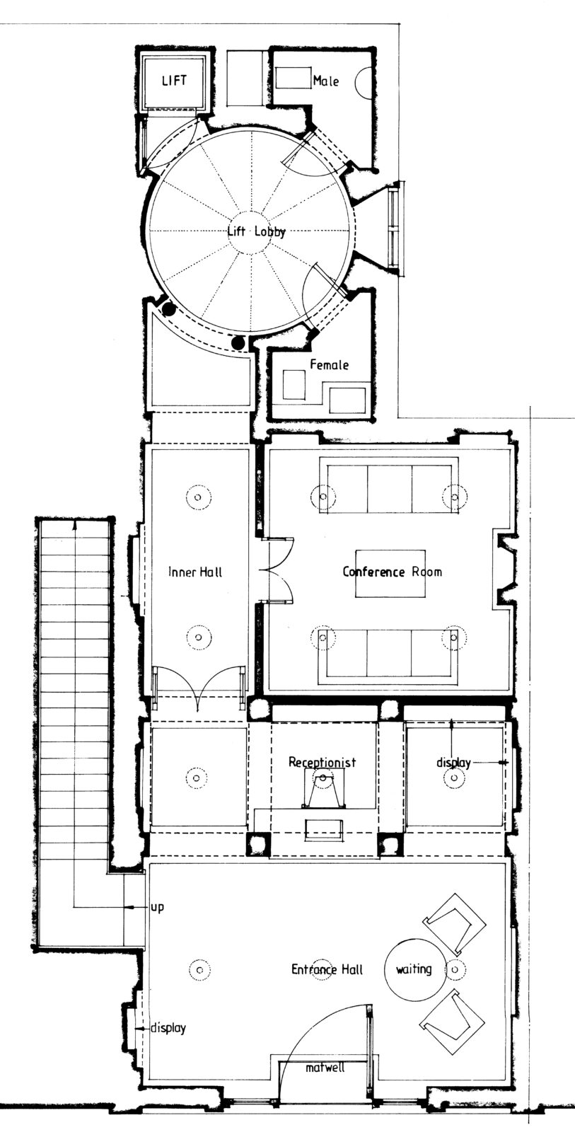
NDA were asked to prepareĀ redesign and refurbishment drawings for partners of an existing solicitors offices. It was a cramped uncomfortable entrance into a lift lobby, the brief was to articulate the space to give it more interest,functionality and resolve the principal elevation which had some potential.
- Existing Elevation
- Proposed Elevation
- Proposed Reception Plan
- Revised Existing Elevation
- Proposed Reception





