Founthill Farm is an early 16th Century Grade II* timber framed farmhouse part of a small farmstead on the outskirts of Newick. The principal early 16th Century timber framed range has exposed original close studwork with lime plaster infill. The problem was trying to appropriately extend this fine traditional building to provide an exciting and more generous new kitchen and dining wing as the existing plan is compromised by modern spatial standards. The scheme was designed as a freestanding contemporary glass pavilion constructed within a sunken brick courtyard to the south elevation initially with a narrow umbilical fully glazed link to the main house. This was widened at clients request into a fully glazed mezzanine and granted Planning & Listed Building and Building consent.
Contractor: Len Brandsbury Construction
Structural Engineer: Ellis Structures Ltd
- Principal Range
- Existing Courtyard
- Atrium under constrcutrion
- Steel with Cedar soffit
- Sunken Courtyard Terrace
- Terrace
- Roof with valley weir
- Sliding Glazing to dining area
- Cleretory glazing over kitchen wall
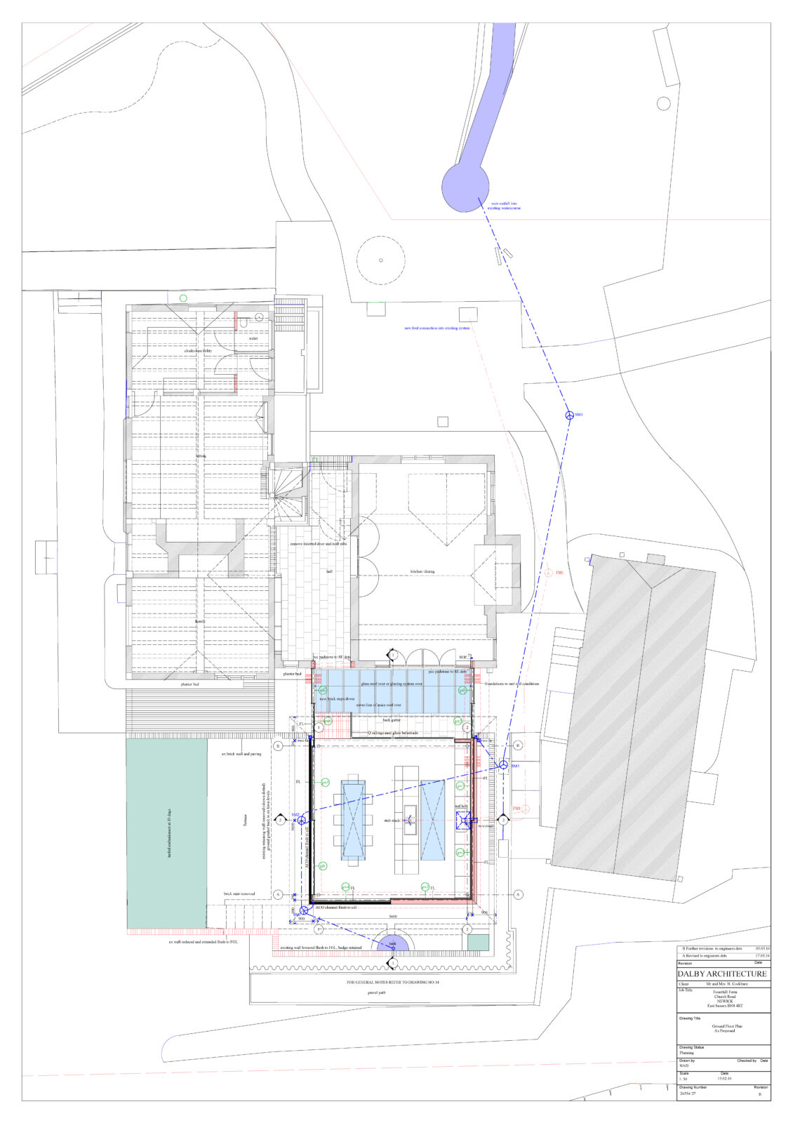
- Site Plan
- Floor Plan
- Roof Plan
- Detailed Floor Plan
- Elevations
- Detailed Elevation

















